
筆者の独断と偏見に満ちた説明で、当社の施工事例をあまなすところなく一方的、かつ大胆に紹介する企画。
『全部見せます!家ツアー』シリーズ第13弾。

家ツアーのガイドは、
おなじみ住宅アドバイザーのシッコク今浦だ。
今回は待望の『塗り壁と無垢の家』。
その名の通り、塗り壁と無垢材をふんだんに使ったおしゃれ系インダストリアル激アツハウスだ。
さっそくツアーに出ようか。

基本情報
- 坪単価: 665,433円(税込72万円)
- 建築価格: 19,058,000 円(税込2,090万円)
- 所在地: 大阪府吹田市
- 敷地面積: 149.63㎡
- 延床面積: 94.67㎡
- 構造: 木造
- 工法: 木造在来工法
- 階数: 2階建
- 外壁: ブレストロング施工左官仕上
- 室内仕上: 天然漆喰
- 床材: 無垢材
- 玄関ドア: 無垢材
- 家族構成: ご夫婦とお子様2人
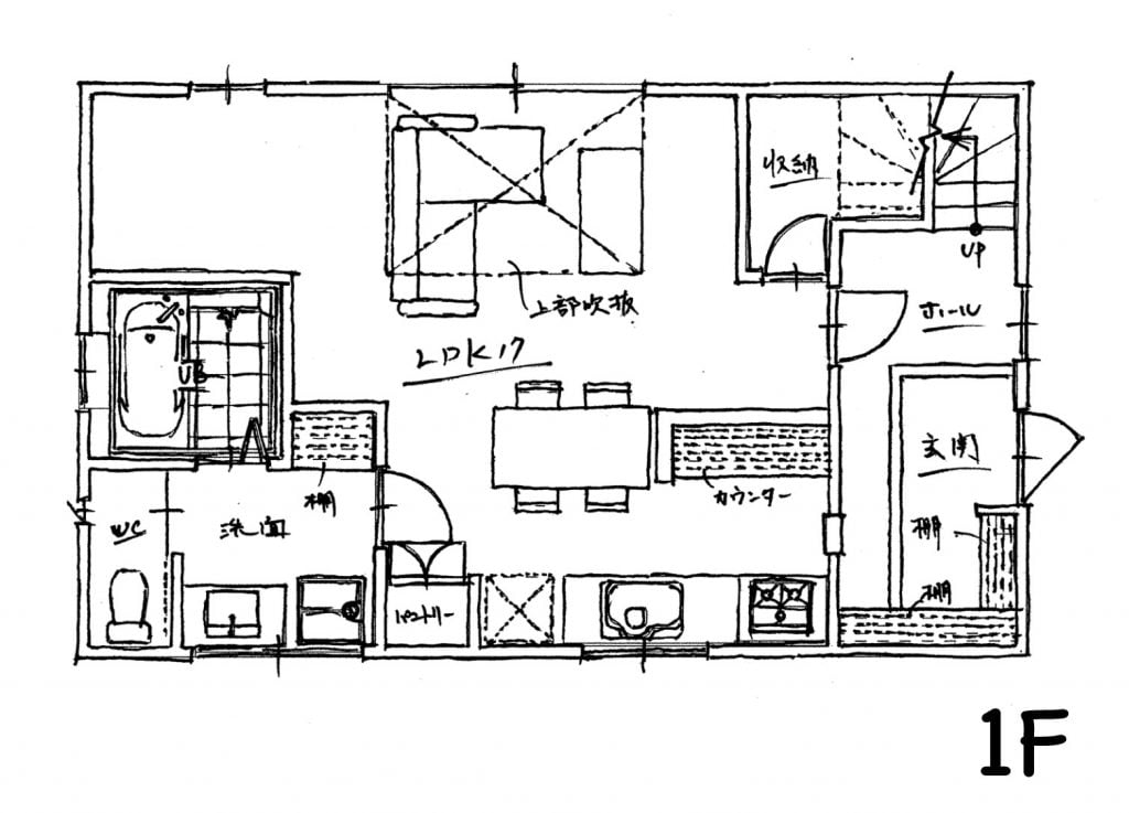
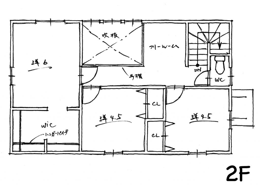
間取り
二階建て木造住宅。1Fには吹き抜けのLDKとカウンターキッチン。収納とキッズコーナーと水周り。
2Fには洋室が3つと趣味のフリースペース。
黄金の右腕を持つ左官屋さんが仕上げた塗り壁の外観
真打登場。
ホームページで出るぞ出るぞと伏線を張ってから、はや5ヶ月。ついに降臨。
ようやくその全貌が明らかになる。
汝、直視せよ。
ぱネェ
驚きのビジュアル。V系ハウスという新ジャンル創設か。
黄金の右腕を持つ左官屋さんが仕上げた塗り壁の風合いがヤバい。
これもんよ。
泣く子も黙るミニクーパー。
例えるなら、納豆に白米。中田カウスに中田ボタン。至極のベストマッチング。
家を建てた後に、ミニクーパーを新調したオーナー様の妥協のなさ。
腹ペコ諸君はぜひ見習うべきだ。
そして、
玄関まで続く吹田のシルクロード。
ここは外構工事屋さんとお客様DIYの合作コラボだ。
木のステップもホームセンターで買ってきた板をお客様ご自身で設置し、ポストや表札も買ってきて取り付けたそう。
全吹田も驚く激センス。

人一人住んでそうな倉庫。
お客様が見つけた海外製のものだそうだ。日本製ではなかなか無いグッドデザイン。
V系玄関周り。
重厚感ある無垢のドアと塗り壁の相性がエゲツない。
オープンシューズクロークの玄関ホール
室内に突入。
大胆にもシューズクロークをオープンし見せるということ。
朝まで生テレビのテーマになりかねない挑戦。
オープンにすることによって、ベビーカーも傘も靴も、そのままIN。出入りの動線がスムーズに。
少々雑多な感じが、これがまた良い。アウターのハンガーバーも手放せない一品だ。
床は無垢のビンテージ風パイン材で統一。この重厚感ぱネェ。
ヤバすぎるアンティーク室内ドア。
本物の木にアンティークガラスと真鍮のドアノブのベストマッチ。むちゃくちゃかわいい。
ここで現在地を確認しておこう
腹ペコ諸君。
ちょっと早いがメインディッシュいくかね?

よっこいしょういち。
はうっっ
インダストリアルなテイストが溢れるエゲツないLDK。
キッチンからのビュー。後で説明するがリビングの上部は吹き抜けだ。
全国の奥様が欲しがるタイル仕上げのキッチン
レトロタイルのカウンターキッチン。奥様方100人中108人が欲しがる一品。
キッチン、半端ないって。。
このタイルのレトロ感よ。まじ卍。
使い勝手が良さそうなカウンター。
中は便利そうにまとめられている。
足場板オイル仕上げのDIY天板
天板は、お客様ご自身で足場板を買ってオイルで仕上げたものだ。
土台は大工さん、タイル屋さんがタイルを張り、お客様が天板を。
壮大なコラボレーションの上に作られたキッチンというわけだ。
“このキッチン、止まらない”
奥様がやりたかった至極の動線
カウンターにダイニングテーブルをマッスルドッキングした「横並びダイニング」。
衝撃的に家事を楽にした動線だ。
つまりこういうことだ。
一般の民:
フライパンで料理を作る
↓
キッチンの作業台でお皿に取り分け
↓
ダイニングに運ぶ。
お客様:
フライパンで料理を作る
↓
フライパンを持って行き、ダイニングで直接お皿に取り分け
あふれるショートカット感。しびれる家事楽感。
手元を明るくプライバシーも考慮した低めの窓。その上にこれまたDIYのビンテージシェルフ。
“このキッチン、まだまだ止まらない”
ガスと電気、ビンテージなアイツ。
ガス管の蓋とコンセントももれなくアンティーク。ホレてまうやろー。
アンティークガラスの飾り窓。
キッチンと玄関の壁の飾り窓は、アンティークガラスをあしらった施主支給の一品。おしゃれな上に家族が帰ってきたらすぐわかる。
個人的に気になったところ。
冷蔵庫と壁の間に1ミリの狂いもなく収まった引き出しだ。ピタッと具合パネエ。
お客様の妥協の無さがうかがえる一品だ。

そして、キッチンの最後はここ。
冷蔵庫横の収納だ。
これがまたレトロな上に重厚な作りで、めちゃかっこいい建て具なのだが、写真では伝わりにくいのが歯がゆす。

パカリ。
むう。キッチン用品が綺麗に収まっている。
今日はここまでだ。
あまりに紹介するところが多すぎる塗り壁と無垢の家。
そんなスゲーやつ、1回のブログになんて収まらない。ああ、収まらない。
閉店ガラガラ、ワオゥ!
CATEGORY:
家ツアー (65) 突撃現場レポート (73) 真似したいアイデアまとめ (6) 至極の動線 (13) 実例で見るほにゃらら (31) 真相に迫る (25) 理想の広さ検証 (12) ランキング (7) メリットとデメリット (12) コラム (39) 進行中案件 (39) 工事の様子 (96) レポート (47) ケーススタディ (4) ご提案 (4) イベント (11) スタッフ日記 (9) お知らせ (13)TAG:
寝室 (12) 基礎 (9) 地鎮祭 (1) ジョジョ (10) 注文住宅 (11) ペニンシュラキッチン (10) クローゼット (2) 外構 (7) スキップフロア (8) 色 (3) 耐震補償 (7) 建築相場 (7) 採光設計 (7) 自由設計 (2) 中庭 (18) ローコスト (3) 天窓 (3) 屋根 (2) ルーフバルコニー (2) アイランドキッチン (8) 横並びダイニング (4) 駐車場 (7) 坪単価 (2) 省エネ (3) ガレージハウス (4) 北向きの家 (3) 未来の家 (1) 外観デザイン (5) 費用について (19) リフォーム (9) シューズクローク (4) ランドリールーム (8) 換気システム (2) 回遊動線 (1) 外観仕様 (16) 水まわり (26) コンフォート通信 (10) リビング階段 (7) ファミリークローゼット (8) カーテンがいらない家 (6) ペットと暮らす家 (9) 外壁材 (1) 子供部屋 (11) ポーチ (11) 総集編 (15) 2ボウル洗面台 (4) キッチン収納 (7) コンフォートからの提案 (9) 漆喰 (1) 多目的デスク (8) 建築用語 (4) 平屋 (2) 部屋干し (3) 家事楽動線 (20) 設計デザインのこと (25) 住まいる教室 (1) ストリップ階段 (12) 家具 (7) ガルバリウム (5) L型キッチン (5) 土間 (10) オーダーメイド家具 (9) 玄関 (15) キューブハウス (14) 着工 (8) ウォークインシューズクローク (14) 無垢材 (9) パントリー (2) 洗面所 (11) 耐震等級 (8) 基礎工事 (9) 高気密高断熱 (5) ミドルコスト (2) 玄関収納 (2) 広さ検証 (19) 世界の面白い家 (1) 広々空間 (4) 書斎・ワークスペース (9) 魚好きのための家 (5) 玄関ポーチ (3) 工事の様子 (82) コンフォートの家づくり (39) 内装工事 (3) インナーバルコニー (7) W断熱 (5) ウォークスルーパントリー (1) 家ができるまで (54) 吹き抜け (27) 棟梁 (3) 断熱材 (5) DCPウォール (5) 壁面収納型パントリー (1) 完成見学会 (13) 模型 (1) 外壁工事 (3) ZEH住宅 (14) DCP WALL (5) 玄関動線 (2) 上棟 (15) 和室 (7) ウォークインクローゼット (10) テレビ裏収納 (13) 塗り壁 (5) ウォークスルークローゼット (2)works /建築実例
テレビ裏収納 天窓 リビング階段 インナーバルコニー スキップフロア ウォークインシューズクローク 3階建 ガレージハウス ストリップ階段 ガルバリウム 土間 中庭/ウッドデッキ ペットと暮らす家 真っ黒の家 真っ白な家 吹き抜け 和室/畳コーナー 店舗 子供部屋 ロフト モノトーン ファミリークローゼット ハコ型ハウス テレワーク タバコルーム キューブハウス 美容院
house tour /全部見せます!家ツアー

間取りから便利機能までご紹介!
全部見せます!!【家ツアー】第4弾 『自然の中のハコ型ハウス』その2
interview /オーナー様に聞きました!

実際のオーナーさまにインタビュー!
家づくり相談
































































